施設のご案内

経験豊富な看護師社長が監修。
看護師目線ならではの
充実した設備が整っています!

お部屋のご案内

お部屋は、9床をご用意しております。
広さは13㎡(8畳)と、ゆとりのある空間です。
お部屋の向きは北向きタイプと南向きタイプがあり、壁上は空・雲で覆われ、
施設内には緑がたくさんあります。

主な設備・サービス

  • 冷暖房完備
    冷暖房完備
  • 収納家具
    収納家具
  • 三面鏡
    三面鏡

共用施設

  • ナースステーション
    ナースステーション
  • 衛生材料室
    衛生材料室
  • 浴室
    浴室
  • リネン収納庫
    リネン収納庫

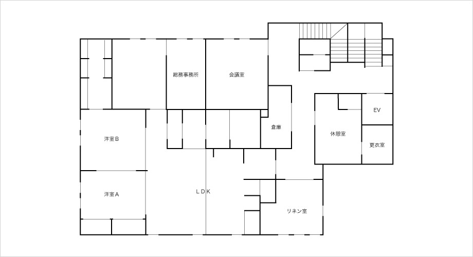
フロアマップ

  1. 1F1F
  2. 2F2F
お問い合わせ

アクセス方法がわからない方は
お電話でお問い合わせ
ください。

052-799-3753ナゴミ
(受付時間 9:00 ~ 18:00)